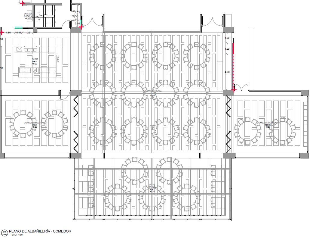
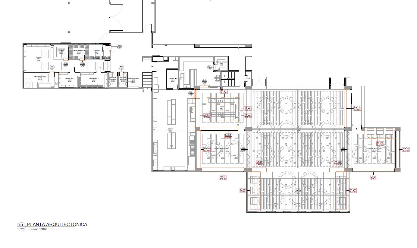
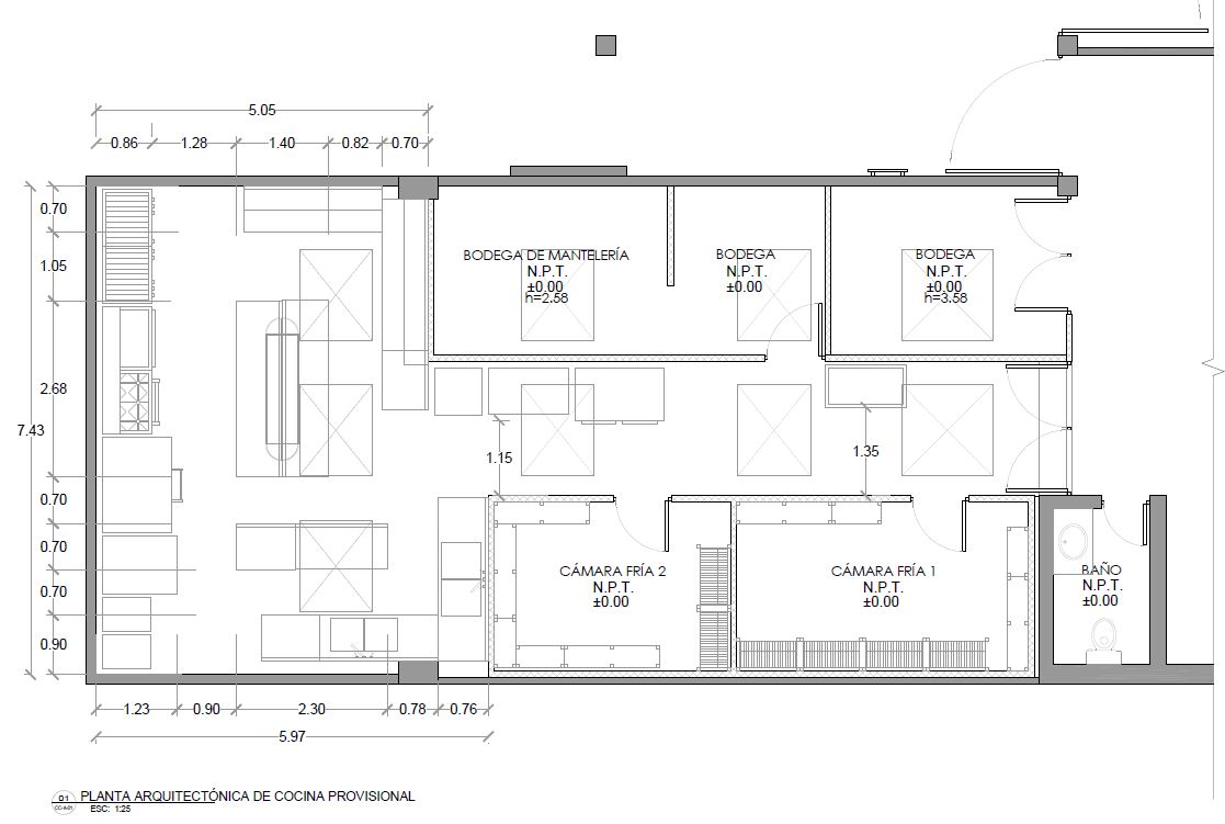
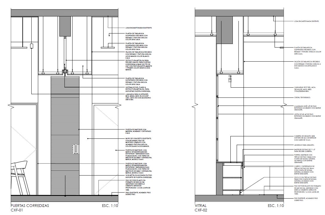
Comedor CEM

Ubicación: Estado de México

Año: 2020

Área de construcción: 900m2

Se realizó una remodelación intensiva del espacio para comedor-cafetería y cocina para la Sede del Episcopado Mexicano en Casa Lago. Se realizó un proyecto de interiorismo en donde la renovación de acabados y la elaboración de mobiliario a detalle marcó la pauta para la propuesta.

Mediante la incorporación de un nuevo plafón flotado se le da un carácter moderno a las instalaciones que combinado con un gran mural que hace elocuencia a una escena religiosa tan importante como “La última cena” se cambió completamente la atmósfera del espacio.

También se cambió y modernizó totalmente la cocina, panadería y bodegas que dan servicio al restaurante.